
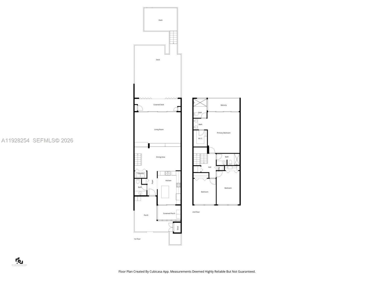
Rarely available and perfectly positioned in Lakeridge, this magnificent townhome offers one of the communitys most coveted locations, front-row, wide-lake views framed by serene water and endless skies. Nestled just steps from Lakeridges renowned amenities , including: 2 pools, tennis, pickleball, 2 community docks, a playground, swimmable lake, butterfly garden & walking trails. This residence captures the essence of resort-style living in the heart of Miami. The home features a brand-new pri...Rarely available and perfectly positioned in Lakeridge, this magnificent townhome offers one of the communitys most coveted locations, front-row, wide-lake views framed by serene water and endless skies. Nestled just steps from Lakeridges renowned amenities , including: 2 pools, tennis, pickleball, 2 community docks, a playground, swimmable lake, butterfly garden & walking trails. This residence captures the essence of resort-style living in the heart of Miami. The home features a brand-new private dock, ideal for peaceful mornings on the lake, paddling, or simply enjoying the tranquil waterfront setting. With its premier orientation and direct lake frontage, this property provides exceptional natural light, privacy, and an incomparable backdrop for everyday living. An estate sale opportunity! This lovingly maintained residence offers extraordinary potential for a buyer looking to customize a rare lakefront home within one of Miamis most beloved gated communities. With guard-gated security, lush landscaping, and an unmatched central location, Lakeridge remains one of the areas hidden jewels. Dont miss the chance to own a truly special piece of Lakeridge. Where homes on wide water are seldom available and always in demand. Subject to Probate Court Approval
View MoreCourtesy of
Agency Name: Compass Florida, LLC
Agency Phone: 305-697-2904
Agent Name: Ana Maria Alexander
Presented by
Agency Title: The Keyes Company
Agency Phone:
Request Info
Send an email with a link to
7043 SW 53rd Ln, Miami, FL 33155.
Email 7043 SW 53rd Ln, Miami, FL 33155
Thank you for your inquiry! As a thank you, we have a Special Mortgage Offer for You.
We would like to provide you a free, no-obligation, home loan pre-approval review.