
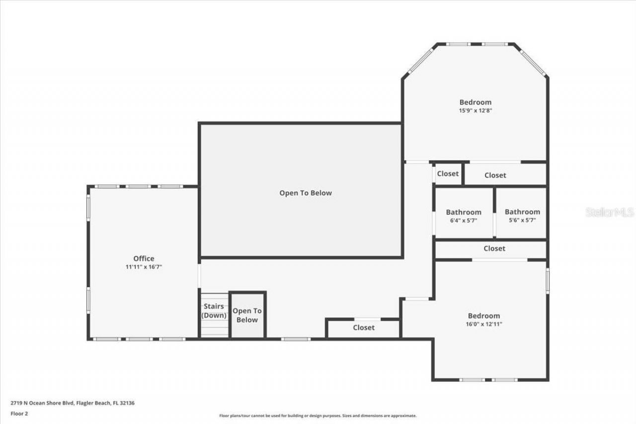
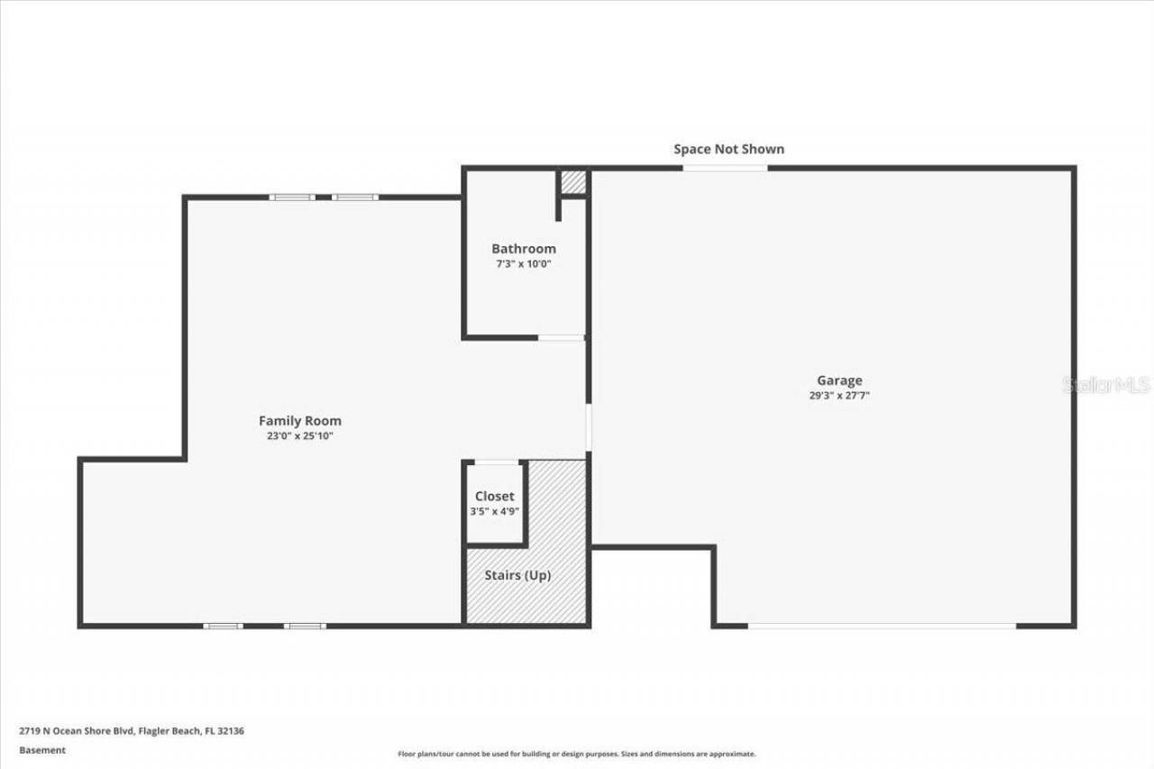
Flagler Beach OCEANFRONT Masterpiece - Where Elegance Meets the Shoreline!! Wake up to the sound of waves and endless Atlantic views in this custom-built three-story oceanfront home with 3 bedrooms, 3.5 bathrooms and a separate office. Thoughtfully designed with quality finishes and direct beach access, this residence offers the rare chance to own a true oceanfront home with space for entertaining, relaxing, and working from home. The main living area on the second floor showcases an open floor ...Flagler Beach OCEANFRONT Masterpiece - Where Elegance Meets the Shoreline!! Wake up to the sound of waves and endless Atlantic views in this custom-built three-story oceanfront home with 3 bedrooms, 3.5 bathrooms and a separate office. Thoughtfully designed with quality finishes and direct beach access, this residence offers the rare chance to own a true oceanfront home with space for entertaining, relaxing, and working from home. The main living area on the second floor showcases an open floor plan with walls of windows framing the ocean. A gourmet kitchen with granite countertops, center island and custom cabinetry flows seamlessly into the dining and living spaces all opening to an expansive oceanfront balcony-perfect for hosting friends or enjoying quiet mornings by the water. The primary suite features private balcony access, dual vanities, a spa-inspired bath and a huge custom walk-in closet. Upstairs, two bedrooms, a loft and a seprate office all enjoy sweeping views. The first-floor bonus room with wet bar is ideal for a game room, gym or in-law suite. Multiple decks, patios, and a private dune walkover with viewing platform put the beach just steps from your door. Extra features include a built-in gas fireplace, dual A/C units, water softener, irrigation, and security system. With no HOA restrictions, oversized living spaces and private beachfront access, this home is ready to enjoy today-or customize to your personal style. Schedule your exclusive showing today!
View MoreCourtesy of
Agency Name: COASTAL GATEWAY REAL ESTATE GR
Agency Contact: 888-977-1588
Agent Name: Erica Sobin
Presented by
Agency Title: The Keyes Company
Agency Phone:
Send an email with a link to
2719 N Ocean Shore Boulevard, Flagler Beach, FL 32136.
Email 2719 N Ocean Shore Boulevard, Flagler Beach, FL 32136
Thank you for your inquiry! As a thank you, we have a Special Mortgage Offer for You.
We would like to provide you a free, no-obligation, home loan pre-approval review.