
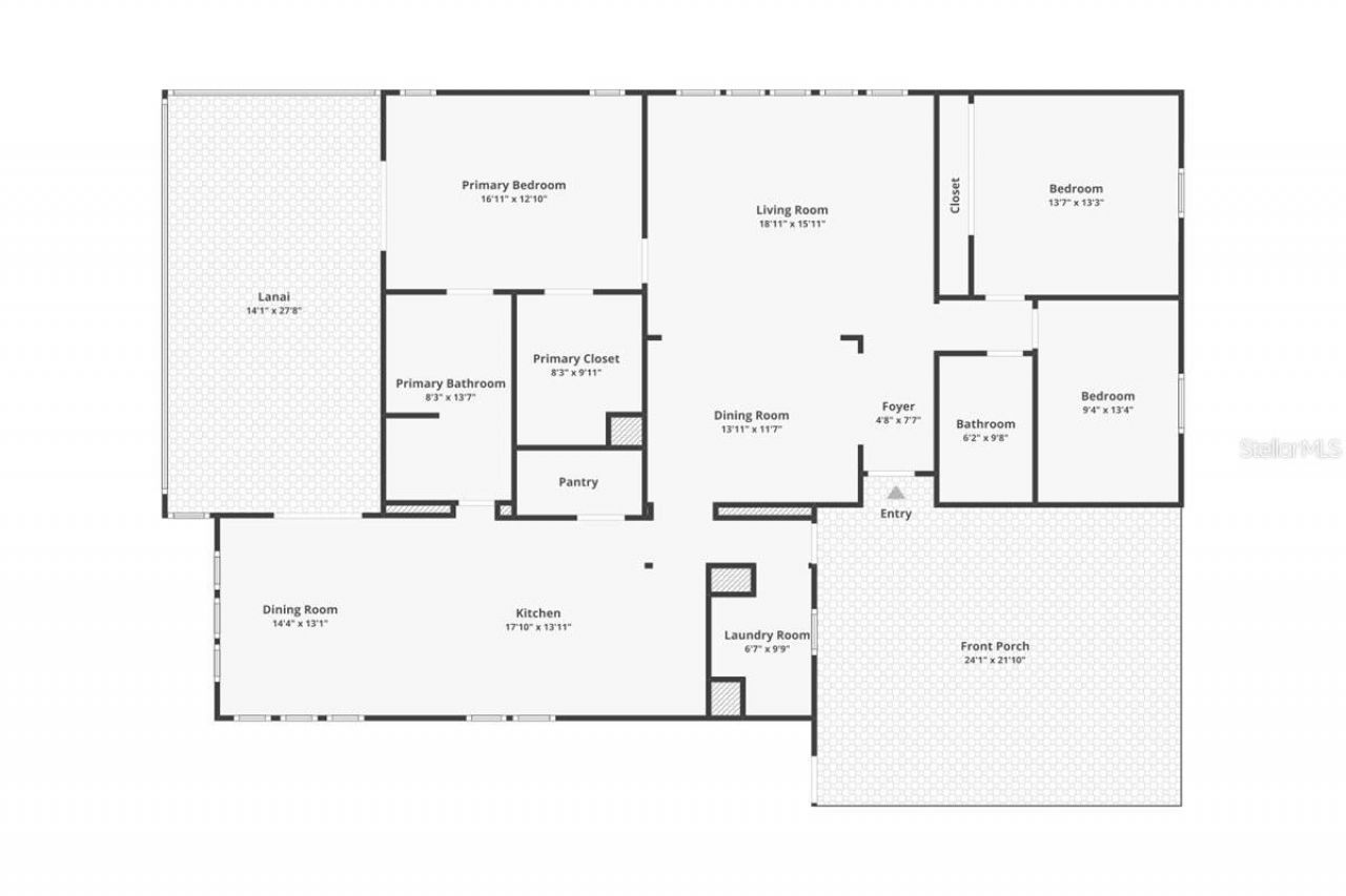
TURNKEY FURNISHED GOLF CART INCLUDED! Welcome to this beautifully maintained lakefront 2-bedroom, 2-bath manufactured home with a versatile den/office, located in the highly desirable 55+ community of Ventura Lakes. Situated on a leased lot at the end of a quiet cul-de-sac, this home offers exceptional privacy, tranquil water views, and inviting curb appeal accented by tropical landscaping and mature palm trees. Community & Fee Information: Buyer approval is required, with an application fee of...TURNKEY FURNISHED GOLF CART INCLUDED! Welcome to this beautifully maintained lakefront 2-bedroom, 2-bath manufactured home with a versatile den/office, located in the highly desirable 55+ community of Ventura Lakes. Situated on a leased lot at the end of a quiet cul-de-sac, this home offers exceptional privacy, tranquil water views, and inviting curb appeal accented by tropical landscaping and mature palm trees. Community & Fee Information: Buyer approval is required, with an application fee of $65 per person or $130 per couple. The 2026 lot rent is $605.43 per month, plus a pass-on charge of $129.92 and an irrigation fee of $12.00. Water is billed quarterly at approximately $57 minimum, plus individual usage. An oversized driveway provides covered parking for two vehicles along with additional space for a golf cart, offering both convenience and functionality. Inside, the light-filled open floor plan is ideal for everyday living and entertaining. The spacious living area features large windows framing peaceful lake views, neutral carpeting, a ceiling fan, and warm, inviting wall tones. The adjacent dining area flows seamlessly into the generously sized kitchen, which offers tiled flooring, skylighting, stainless-steel appliances, abundant raised-panel cabinetry, generous counter space, a center island with seating, a walk-in pantry, and a cozy dinette area. A thoughtfully added door from the primary bathroom to the kitchen enhances accessibility and everyday convenience. Just off the kitchen, the laundry room includes a washer, dryer, utility sink, and ample storage. The primary suite features plush carpeting, sliding glass doors to the Florida room, an oversized walk-in closet, and a private bath with a walk-in shower, extended dual-sink vanity, and excellent storage. The guest bedroom offers comfortable carpeting, large built-in closets, and easy access to a full guest bath. The den/office provides flexible space and could easily serve as a third bedroom. The Florida room is a true highlight, offering a bright and airy retreat with panoramic lake views. Surrounded by expansive windows, this inviting space is filled with natural light and enhanced by neutral carpeting, crisp white finishes, bamboo shades, and twin ceiling fans. Furnished with a charming wicker dining set, it's the perfect spot to relax, entertain, or enjoy peaceful mornings and colorful sunsets overlooking the water. Additional features include an attached storage shed, plantation shutters, generator, new A/C and water heater (2023), and a golf cart-all conveying with the sale. Ventura Lakes offers resort-style amenities including a clubhouse with year-round activities, swimming pool and hot tub, pickleball, tennis, mini golf, shuffleboard, bocce ball, and horseshoes. Ideally located in the charming city of Punta Gorda-consistently ranked among the best places to retire in Southwest Florida-residents enjoy convenient access to dining, shopping, medical facilities, golf, boating, Gulf beaches, world-class fishing, I-75, and multiple regional and international airports. **PLEASE ENJOY THE 3D INTERACTIVE VIRTUAL TOUR ASSOCIATED WITH THIS LISTING**
View MoreCourtesy of
Agency Name: MARINA PARK REALTY LLC
Agency Contact: 941-205-0888
Agent Name: Scott Dufour
Presented by
Agency Title: The Keyes Company
Agency Phone:
Request Info
Send an email with a link to
27110 Jones Loop Road, Unit 116, Punta Gorda, FL 33982.
Email 27110 Jones Loop Road, Unit 116, Punta Gorda, FL 33982
Thank you for your inquiry! As a thank you, we have a Special Mortgage Offer for You.
We would like to provide you a free, no-obligation, home loan pre-approval review.