
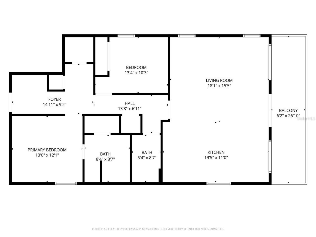
2044 South Oceanshore Boulevard in Flagler Beach, Florida is a rare opportunity to own a newly built, three story coastal property designed around flexibility, income potential, and lifestyle.Completed in 2024, this 3,706 square foot property includes six bedrooms and five bathrooms across three fully independent residential units. Each unit occupies its own floor, features a separate private entrance, and functions as an individual residence. This design allows the property to be lived in, rent...2044 South Oceanshore Boulevard in Flagler Beach, Florida is a rare opportunity to own a newly built, three story coastal property designed around flexibility, income potential, and lifestyle.Completed in 2024, this 3,706 square foot property includes six bedrooms and five bathrooms across three fully independent residential units. Each unit occupies its own floor, features a separate private entrance, and functions as an individual residence. This design allows the property to be lived in, rented long term, rented short term, or operated as a combination of all three.Whether you choose to live in one unit and rent the others, operate all three as short term rentals, hold them as long term income producing leases, or mix strategies over time, this property provides options that are increasingly difficult to find in Flagler Beach.The first floor offers approximately 1,170 square feet and includes garage access. The second and third floors each provide roughly 1,300 square feet and feature both front facing and rear balconies, creating functional indoor outdoor living on every level. Each unit is thoughtfully laid out to support privacy, usability, and independent living.An elevator shaft has already been framed and pre plumbed, allowing for future installation without structural changes. Interior finishes are clean, modern, and refined, reflecting the advantages of new construction where nearly everything is new.Situated on a corner lot along South Oceanshore Boulevard, the property offers added presence, natural light, and privacy. This is a true one of one build and currently the only property of its kind available on the market in Flagler Beach.For buyers seeking a Flagler Beach investment property, a multi unit coastal home, a short term rental opportunity, or a primary residence with built in income potential, this property delivers versatility, modern construction, and long term value in a highly desirable coastal location.
View MoreCourtesy of
Agency Name: REAL BROKER, LLC
Agency Contact: 855-450-0442
Agent Name: Ronnie Ward
Presented by
Agency Title: The Keyes Company
Agency Phone:
Send an email with a link to
2044 S Ocean Shore Boulevard, Flagler Beach, FL 32136.
Email 2044 S Ocean Shore Boulevard, Flagler Beach, FL 32136
Thank you for your inquiry! As a thank you, we have a Special Mortgage Offer for You.
We would like to provide you a free, no-obligation, home loan pre-approval review.