
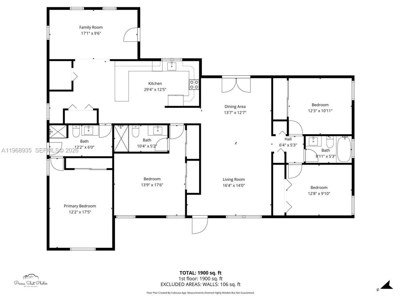
Spacious 4-bedroom, 3-bath single-family home with NO HOA and a classic traditional layout! Two bedrooms feature en-suite bathrooms, offering flexibility for guests or multi-generational living. The home includes a formal living and dining room plus a separate family room highlighted by a beautiful wood ceiling, creating a warm and inviting gathering space. Two additional storage closets provide extra functionality.The remodeled L-shaped kitchen offers stainless steel appliances, dine-in seating...Spacious 4-bedroom, 3-bath single-family home with NO HOA and a classic traditional layout! Two bedrooms feature en-suite bathrooms, offering flexibility for guests or multi-generational living. The home includes a formal living and dining room plus a separate family room highlighted by a beautiful wood ceiling, creating a warm and inviting gathering space. Two additional storage closets provide extra functionality.The remodeled L-shaped kitchen offers stainless steel appliances, dine-in seating, and is separate from the formal dining area. Bathrooms have been tastefully updated. Major upgrades include a brand-NEW 2025 METAL ROOF and impact windows for peace of mind and insurance savings.Enjoy outdoor living in the fenced backyard with privacy landscaping, sparkling pool, and backyard shed for storage. The property also features a front porch area and sidewalk in front of the home.Conveniently located minutes from US-1, offering abundant dining, shopping, and everyday conveniences, and just a short drive to Zoo Miami. A fantastic opportunity to own a move-in-ready home in a prime location!
View MoreCourtesy of
Agency Name: Edwin Vega Realty LLC
Agency Phone: 305-400-0844
Agent Name: Edwin Vega
Presented by
Agency Title: The Keyes Company
Agency Phone:
Request Info
Send an email with a link to
16323 SW 103rd Pl, Miami, FL 33157.
Email 16323 SW 103rd Pl, Miami, FL 33157
Thank you for your inquiry! As a thank you, we have a Special Mortgage Offer for You.
We would like to provide you a free, no-obligation, home loan pre-approval review.