
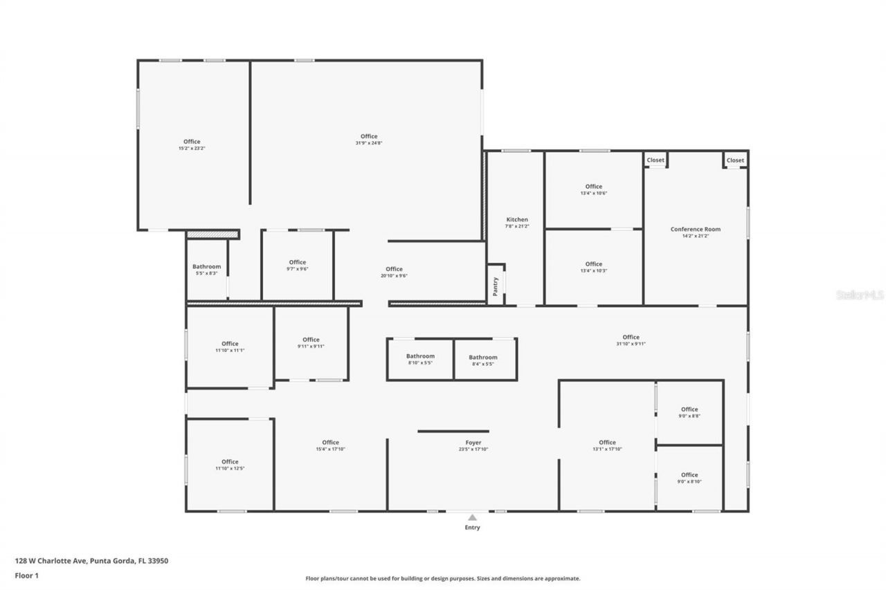
Position your business where visibility, accessibility, and community converge in downtown Punta Gorda. This established professional office building offers approximately 4,917+ square feet of highly flexible commercial space designed to adapt to a variety of business needs. The interior layout includes multiple private offices, a conference room, reception area, kitchen/break room, three restrooms, and several large multi-use areas, allowing for efficient workflow and customizable configuration...Position your business where visibility, accessibility, and community converge in downtown Punta Gorda. This established professional office building offers approximately 4,917+ square feet of highly flexible commercial space designed to adapt to a variety of business needs. The interior layout includes multiple private offices, a conference room, reception area, kitchen/break room, three restrooms, and several large multi-use areas, allowing for efficient workflow and customizable configurations.The property provides parking on three sides plus convenient street parking, enhancing ease of access for staff and clients alike. With quick access to US-41 and immediate proximity to downtown businesses, restaurants, waterfront parks, and civic amenities, the location delivers excellent connectivity and day-to-day convenience.Punta Gorda is widely recognized for its vibrant, welcoming downtown and strong sense of community, making it a desirable destination for professional, medical, and service-oriented users. Zoned City Center District, this property allows for a broad range of permitted commercial uses and represents a compelling opportunity within one of the city's most sought-after commercial corridors.
View MoreCourtesy of
Agency Name: COLDWELL BANKER SUNSTAR REALTY
Agency Contact: 941-637-1090
Agent Name: Sharon Neuhofer
Presented by
Agency Title: The Keyes Company
Agency Phone:
Request Info
Send an email with a link to
128 W Charlotte Avenue, Punta Gorda, FL 33950.
Email 128 W Charlotte Avenue, Punta Gorda, FL 33950
Thank you for your inquiry! As a thank you, we have a Special Mortgage Offer for You.
We would like to provide you a free, no-obligation, home loan pre-approval review.