
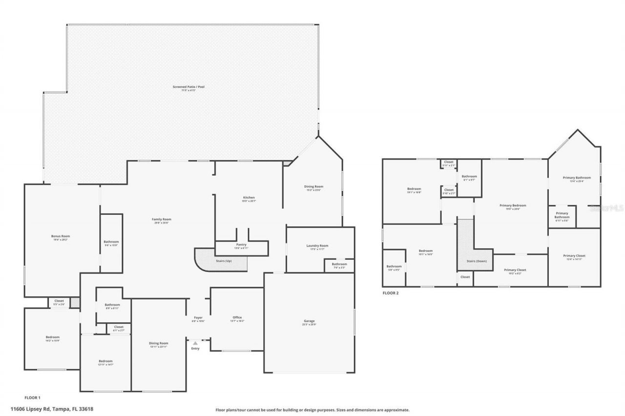
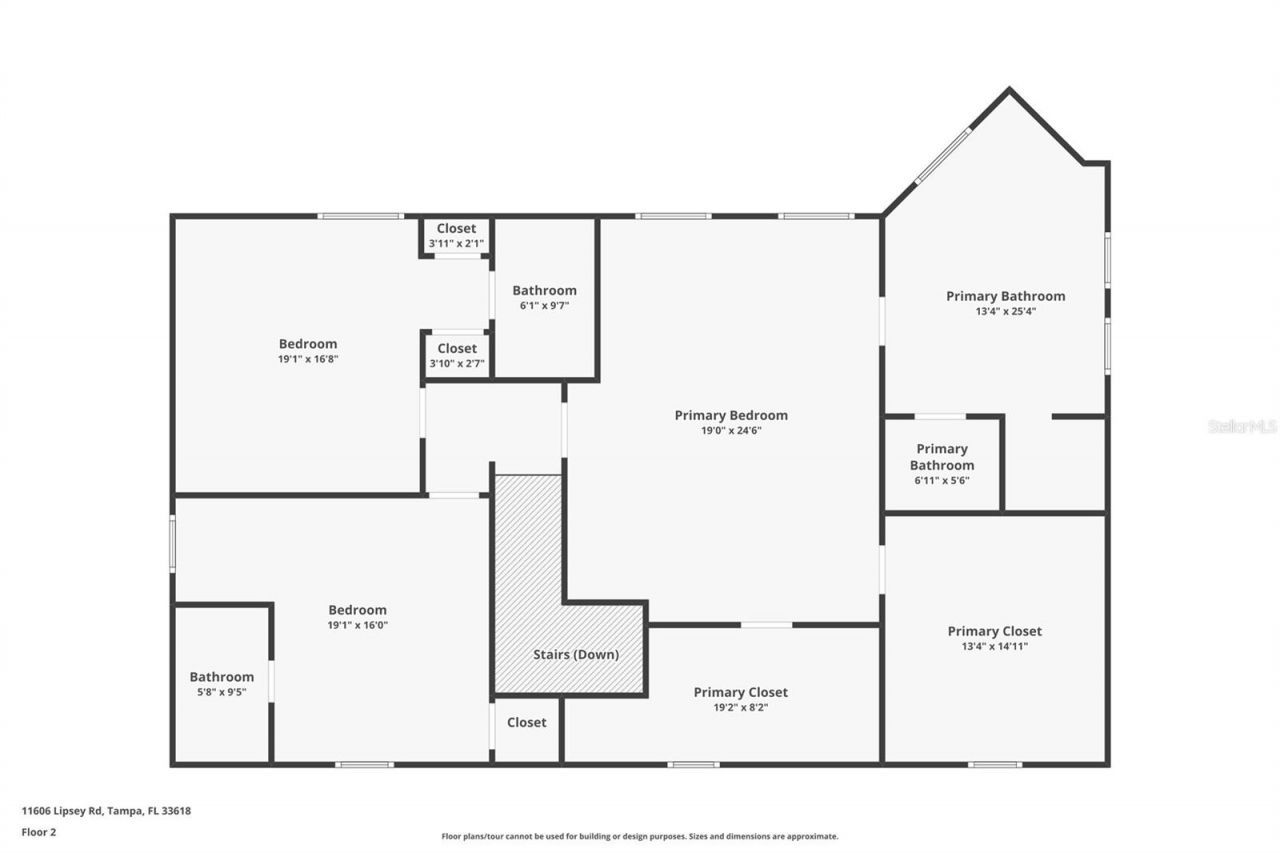
One or more photo(s) has been virtually staged. Amazing LAKEFRONT upgraded 4,298 htd. sf. POOL home in ORIGINAL CARROLLWOOD on LAKE LIPSEY with 5BR's, 5.5BA's, Office, Flex Rm., & includes a downstairs In-Law/Bonus Suite, over a quarter of an acre lot, & much more! Your expansive paver driveway w/ extended parking greets & welcomes you to beautiful travertine flooring in the massive family rm. opening to stunning LAKE LIPSEY! You'll be impressed w/ the 10ft. ceilings on 1st floor, superior craft...One or more photo(s) has been virtually staged. Amazing LAKEFRONT upgraded 4,298 htd. sf. POOL home in ORIGINAL CARROLLWOOD on LAKE LIPSEY with 5BR's, 5.5BA's, Office, Flex Rm., & includes a downstairs In-Law/Bonus Suite, over a quarter of an acre lot, & much more! Your expansive paver driveway w/ extended parking greets & welcomes you to beautiful travertine flooring in the massive family rm. opening to stunning LAKE LIPSEY! You'll be impressed w/ the 10ft. ceilings on 1st floor, superior craftsmanship throughout, & chef's kitchen overlooking the huge pool/patio/screened areas. Utilize the gas range, double Miele ovens, professional grade appliances, walk-in pantry, & ample counter space! Your 1st floor has a huge bonus rm. & full bath (easily a secondary primary suite or in-law suite), 2 bedrooms, an office/den, a lg. dining room perfect for entertaining, & addl. rm. (in back) that is great for an addl. office, sitting area, or secondary TV rm., & the utility rm. (w/ massive counter space, cabinets, racks, & room for a secondary lg. fridge). Your 1st floor totals 2.5 baths w/ multiple options for family settings. Upstairs, you'll have stunning views of Lake Lipsey from the master suite that also has an office/den/or possibly a huge 2nd walk-in closet. Enjoy rich wood flooring, high ceilings, lg. windows, & a dream renovated bathroom suite including a private water closet. Additionally, BR's 4 and 5 are spacious, wood floored, & each bedroom has 'ensuite bathrooms! These rooms will show gorgeous crown molding, window casings, lg. baseboards, & upgraded baths! The exterior will say let's party w/ a massive paver patio that wraps from end to end of the home! Relax w/ an insulated patio roof, screen cage (18'), shaded screened lanai areas w/ fans, pavers that wrap to the side of the home for convenience, & optional open sun exposure w/in the screened area. Splash away in the lg. pool & spa setting while having the views & lg. yard as a backdrop! Other upgrades include an on-demand water heating sys. (21'), water softener system (22') reverse osmosis sys. (22'), lg. propane tank, upgraded a/c units (21' & 24'), pool pump (24'), roof (17'), irrigation pump, & fenced yard. Your future home has so many living options for entertaining & enjoying! If life is about memories & experiences - come see this home today! This Lipsey address is so convenient to the amenities of Original Carrollwood! Original Carrollwood is a high-demand neighborhood where residents are able to enjoy two parks, a dog park, tennis courts, picnic areas & pavilion (w/ restrooms), fishing pier, a private beach/pier/ramp on Lake Carroll (White Sands Beach) & several community social events throughout the year. The O.C. community is served by two boards: the Carrollwood Civic Association (CCA) & the Carrollwood Recreation District (CRD). This home is conveniently located 10 to 15 min. from TIA, near USF, Lowry Park Zoo, I-275, Downtown Tampa/Riverwalk, & 45 min. to the best beaches!
View MoreCourtesy of
Agency Name: REAL ESTATE FIRM OF FLORIDA, LLC
Agency Contact: 813-961-6000
Agent Name: Charlie Bodine
Presented by
Agency Title: The Keyes Company
Agency Phone:
Request Info
Send an email with a link to
11606 Lipsey Road, Tampa, FL 33618.
Email 11606 Lipsey Road, Tampa, FL 33618
Thank you for your inquiry! As a thank you, we have a Special Mortgage Offer for You.
We would like to provide you a free, no-obligation, home loan pre-approval review.