
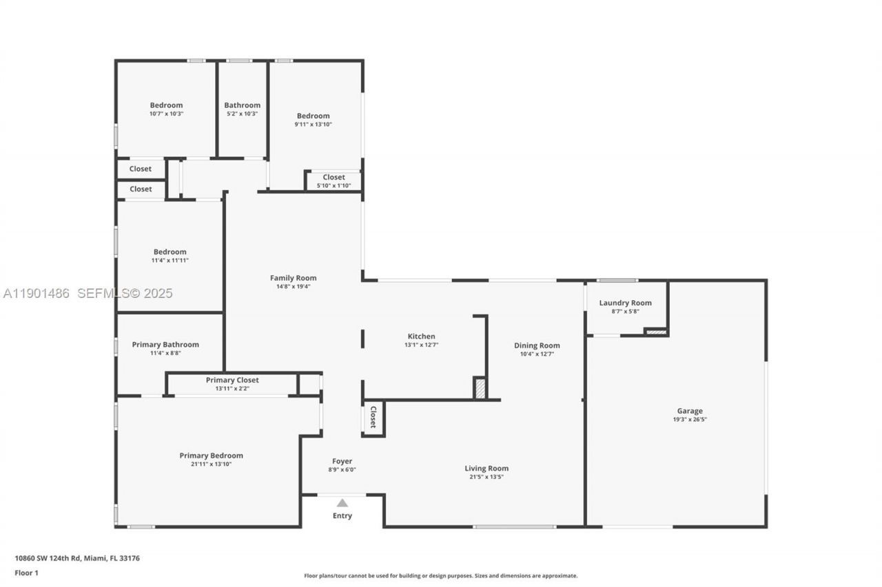
Experience this bright, open 4-bed, 2-bath home in Pine Shores offers 2,389 sqft of spacious living. Highlights include a split floor plan which offers privacy, impact windows and doors, updated PVC plumbing, full-house generator, stainless steel appliances, and gorgeous updated guest bath. The eastern exposure bathes the interior in natural light, creating a warm and inviting ambiance. Enjoy a 15,000 sqft lot with room to entertain, relax, play or expand. Zoned for top private and public schoo...Experience this bright, open 4-bed, 2-bath home in Pine Shores offers 2,389 sqft of spacious living. Highlights include a split floor plan which offers privacy, impact windows and doors, updated PVC plumbing, full-house generator, stainless steel appliances, and gorgeous updated guest bath. The eastern exposure bathes the interior in natural light, creating a warm and inviting ambiance. Enjoy a 15,000 sqft lot with room to entertain, relax, play or expand. Zoned for top private and public schools and just minutes to The Falls and major highways. Two-car garage plus driveway. A move-in-ready gem in a golf cart-friendly neighborhood ?where comfort, convenience, and style meet family living with true Miami charm.
View MoreCourtesy of
Agency Name: Compass Florida, LLC
Agency Phone: 305-697-2904
Agent Name: Ernesto Bascuas
Presented by
Agency Title: The Keyes Company
Agency Phone:
Request Info
Send an email with a link to
10860 SW 124th Rd, Miami, FL 33176.
Email 10860 SW 124th Rd, Miami, FL 33176
Thank you for your inquiry! As a thank you, we have a Special Mortgage Offer for You.
We would like to provide you a free, no-obligation, home loan pre-approval review.